| ■逗子のコートハウス | 2000.08 |
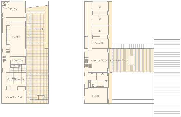
| 計画地 :神奈川県逗子市 | 首都圏内としては格段の広さの敷地の東側には、高台に有る公園へと至る斜面が緑地として存在していて、建主はその緑地への眺望を何よりも優先された。厳しい建蔽率制限、高さ制限のおかげで、要求される内部空間はこの広い敷地面積にもかかわらず総2階建てとしても納まりきらないほどのボリュームであったが、H形の配棟の間にサンクンガーデンを設けて一部地下とすることで東への眺望、南からの日照、道路・隣地からのプライバシーを確保している。 |
| 用 途 :住宅 | |
| 主要構造:鉄筋コンクリート造、一部木造 | |
| 敷地面積:1537.58m2 | |
| 延べ面積:566.77m2 | |
SITEPLAN
2FPLAN
B1FPLAN/2FPLAN
PERSPECTIVE
|
|
|
|
|
|
|
|