| ■横浜・三重箱の家 | 1999.06 |
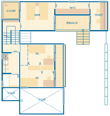
| 計画地 :横浜市南区 | 横浜の中心市街からも程近い高台に建つ住宅である。南と西が道路に面した角地で敷地形状にも恵まれている。整形な敷地のなかに、縦横高さの比例を操作した3つのボックスを、ずれと空隙を生み出すように配置することでシンプルかつ機能的でありながら多様な空間をはらむことが意図された。1つめのボックスはメインの居住域となるボックスで、ほぼ同等の広さの空地(オープンテラスとなる)を南側に確保して、敷地のほぼ中央に置かれる。3つのボックスのなかで最も大きなボックスである。2つめのボックスは東側の隣地境界に沿って置かれる。東側の隣地はこちらの敷地より1mほど低くなっており、南側の道路もその高低差なりに勾配がついている。このボックスは駐車場を内蔵しているため、東側隣地と同レベルまで地盤を掘り下げたうえに置かれる。必然的に、1つめのボックスとは約半階分の段差が生じる。1つめのボックスと2つめのボックスはオープンテラスへつながるサービスヤード分の空隙を介して隔離されている。上階へはオープンテラスから外部階段でアクセス可能としている。スキップフロアとなるこの2つのボックスをつなぐのが3つめのボックスの役割である。住居内の動線はほとんどこのボックスのなかに収納される。スレンダーな平面であるが、高さは最も高く、北側の隣家からプライバシーを確保している。上階には天井が十分に高い水廻りが収納されており、天窓から採光を得ている。 |
| 用 途 :住宅 | |
| 主要構造:木造在来工法、一部鉄筋コンクリート造 | |
| 敷地面積: | |
| 延べ面積: | |
1FPLAN
2FPLAN
RFPLAN
PERSPECTIVE
|
|
|
|
|
|