| ■WEISS | 2015.5完成 |
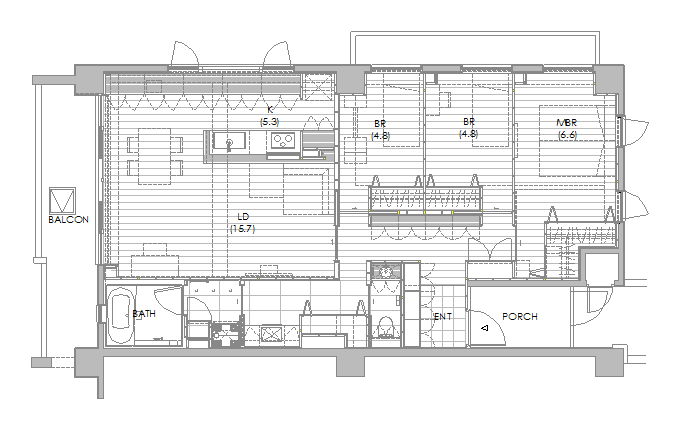
| 計画地 :神奈川県藤沢市 | 中古で購入された築12年のまだ新しい大規模分譲マンションの住戸のリノベーション。既存の間取はLDの真ん中に閉じられたキッチンが鎮座し、また東西に長い水廻りの出入口のための廊下があることで広さの割には使いにくく暗い印象であった。3LDKの間取はそのままとしながら、LDをなるべく使いやすくするためにキッチンは向きを変えて対面式のオープンなキッチンとし、水廻りへの動線を見直すことでLDを広くし家具のレイアウトもしやすく改変した。3つの寝室の配置は大きく変えてはいないが個室部分の面積を少し削った分、収納を増設し片開きドアは全て引き込み戸に変更している。天井高さを高くした室内は壁天井ともにドイツ漆喰を塗りまわし、南面に開口を持たないこの住戸をなるべく明るく感じさせるようにしている。 |
| 用 途 :共同住宅(専用住戸部分のリフォーム) | |
| 主要構造:鉄筋コンクリート造 | |
| 延べ面積:95.69m2 | |
PLAN
BEFORE PLAN
![]() |
![]() |
![]() |
![]() |
![]() |
![]() |
![]() |
![]() |
![]() |
![]() |
![]() |
![]() |
![]() |
![]() |
![]() |
![]() |
![]() |
![]() |
![]() |
![]() |
スナップ |