| ■usva | 2013.11完成 |
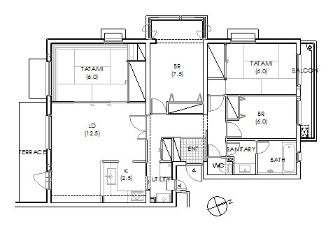
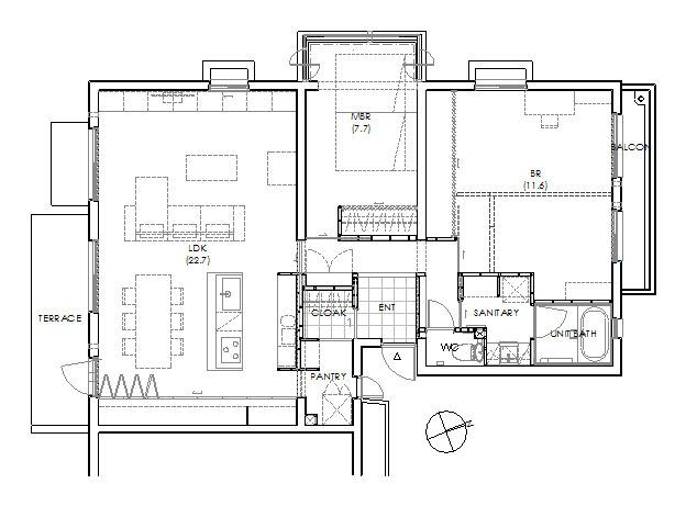
| 計画地 :神奈川県横浜市磯子区 | 築25年ほどの公団分譲住宅の専用住戸のフルリフォーム。鉄筋コンクリート壁式構造のため大きく間取りを変更することは難しかったが和室2室を含む4LDKだった間取りの壁を一部撤去するなどして2LDKとして部屋を広く使い、必要な箇所に新たに造作家具を設けることで収納量を確保している。キッチンはアイランド式のキッチンに変更した。内装は北欧テイストの白木調の木材とタイルをアクセントとして内壁と天井は全て施主施工によるポーターズペイントにて薄紫色としている。 |
| 用 途 :共同住宅(専用住戸部分のリフォーム) | |
| 主要構造:鉄筋コンクリート造 | |
| 延べ面積:98.99m2 | |
PLAN
BEFORE PLAN
![]() |
![]() |
![]() |
![]() |
![]() |
![]() |
![]() |
![]() |
![]() |
![]() |
![]() |
![]() |
![]() |
![]() |
![]() |
![]() |