| ■辻堂の家 | 2015.07完成 |
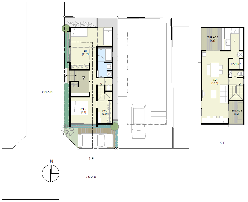
| 計画地 :神奈川県藤沢市 | 南北に細長い敷地で南と西の2面道路に面する角地に計画した夫婦+子供3人のための家。建物は敷地を目一杯活かした細長い箱型の建物で外壁は耐久性が高く、コーナーの納まりが美しいガルバリウム鋼板の横葺で仕上げている。1階には夫婦と子供たちの寝室と水廻り、2階には高天井のLDとテラスに対して対面する少し変わったキッチンを設けている。庭がほとんど取れないが2階に設けた南北2つのテラスによってプライバシーを保ちつつ半屋外での生活が可能となっている。 |
| 用 途 :住宅 | |
| 主要構造:木造在来工法 | |
| 敷地面積:96.47m2 | |
| 延べ面積:101.44m2 | |
![]() |
![]() |
![]() |
![]() |
![]() |
![]() |
![]() |
![]() |
![]() |
![]() |
![]() |
![]() |
![]() |
![]() |
![]() |
スナップ |