| ■家/急斜面 | 2008.03 |
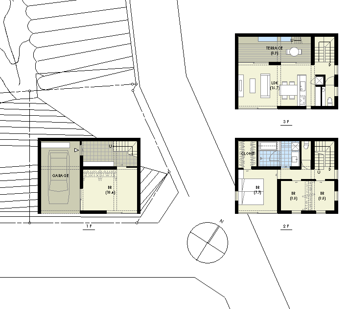
| 計画地 :神奈川県鎌倉市 | 造成開発に取り残された急勾配の斜面地。背後にも高く山が控えているため,地下車庫付の擁壁の上に木造2階建てを建てるという通常の開発手法は困難であり、そのため擁壁を設けないで鉄筋コンクリート3階建の住宅を既存の斜面にそのまま埋め込むような建物とした。斜面地建築物規制のため3階にドライエリアを設ける必要があったため居間は最上階の3階としてテラスを有効活用し、地中に埋まる2階の水廻りへの採光も設けることも同時に可能となった。 |
| 用 途 :建売住宅 | |
| 主要構造:鉄筋コンクリート造 | |
| 敷地面積:113.17m2 | |
| 延べ面積:133.69m2 | |
PLAN
|
|
|
|
|
|
|
|