| ■伊豆下田のクリニック | 2001.05 |
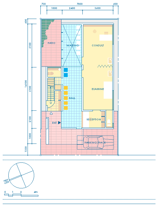
| 計画地 :静岡県下田市 | 下田駅にほど近い住居併用の診療所計画である。1階を診療所、2,3階を医師の住宅と明確に分離し、外観上においても異なる素材の2つのマスがそのままクロスオーバーした形態を表している。2つの機能間のプライバシーを確保しながらも内部の吹抜や外部空間を随所に挟みこむことによって閉鎖的な空間と開放的な空間が交互にたち表れる変化にとんだシークエンスを産み出している。診療所は敷地の奥行きを活かした平面形として、待合ホールの奥部においては2層吹抜のガラス面越しに囲まれたパティオと対峙させ、待合空間の快適化を図っている。住居部は2〜3階吹抜を通してほぼワンルーム化された居住空間であり、広くプライベートなルーフテラス及び南面のハイサイドライトによって街の雑踏から逃れつつ温暖なこの地域での生活を楽しめるように配慮している。 |
| 用 途 :診療所(眼科)+住宅 | |
| 主要構造:鉄骨造 | |
| 敷地面積:146.41m2 | |
| 延べ面積:164.70m2 | |
1FPLAN
2FPLAN
3FPLAN
PERSPECTIVE
|
|
|
|
|
|
|
|
|
|
|
|