| ■世田谷・ひなたの家 | 2002.02 |
| 計画地 :東京都世田谷区 | 風致地区内で建蔽率制限が厳しい代わりに敷地規模が大きく、日照、眺望とも申し分なく東京都区内と思えないほどの敷地である。隣地も同様の敷地規模なので一般的な旗竿状敷地を2倍にスケールアップしたような敷地形状で専用通路部分だけで20Mもの長さがある。南向きの雛壇上に造成され南側には建物が建たない好条件なので、しごく単純に全ての居室を南面させるように東西に細長い配置としている。自動車転回のためセットバックさせた北側に水廻りを集約したウィングを張り出させて、本体は中央の居間とその上の吹き抜けを挟んで左右に居室を設けるという一般化されたスタイルでよしとしている。周囲のゆったりとしたスケールになじむように、建物もなるべく単純化されたスタイルとしていて、傾斜した外壁と屋根の同材で覆われたシェルター上の断面を設け、南側を大きく開放することで最大限の採光と眺望を取りれている。 |
| 用 途 :住宅 | |
| 主要構造:木造在来工法 | |
| 敷地面積:470.71m2 | |
| 延べ面積:177.14m2 | |
1FPLAN
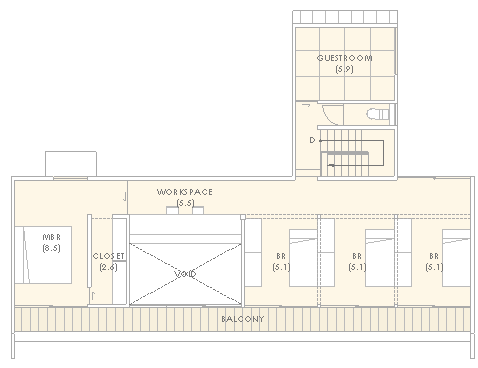
2FPLAN
PERSPECTIVE
|
|
|
|
|
|
|
|
|
|
|
|