| ■下山田小学校建築設計競技(奨励賞入選) (collaboration with Takuo Iizuka,Takashi Hayashi,Masaru Kutsuwa) | 1997.02 |
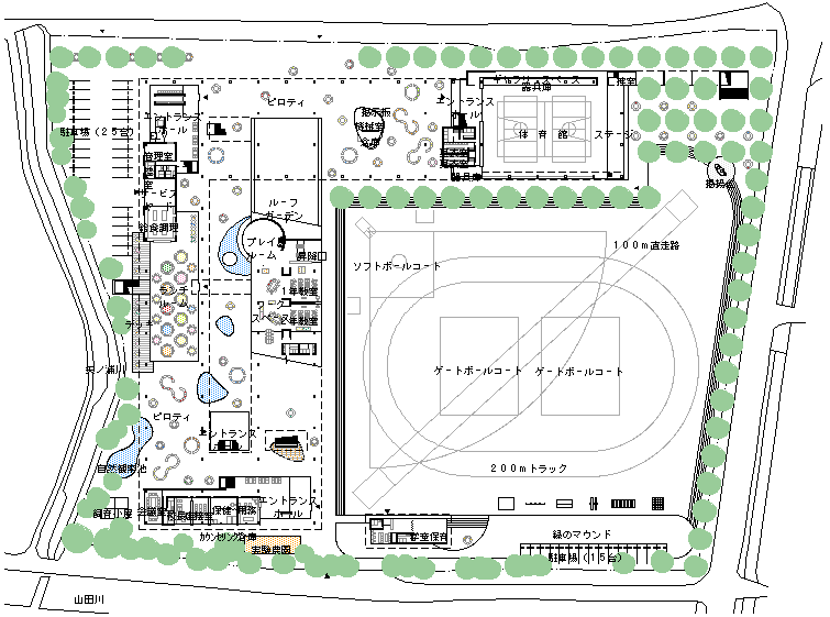
| 計画地 :福岡県山田市 | 学習や事務のための諸室を、ひとつながりのチューブ状の空間に動線と一体化させつつ収納し、日照、アクセス、敷地内での配置を考慮し、折り曲げ、上昇させてゆく。チューブの下には、ランチルームや屋外学習のためのスペースなどオープンで多目的な空間を配し、チューブ上は屋上庭園として児童の活動の場を拡げている。 |
| 用 途 :小学校 | |
| 主要構造:鉄骨鉄筋コンクリート造 | |
| 敷地面積: | |
| 延べ面積:6080m2 | |
1FPLAN
2FPLAN
PERSPECTIVE
|
|
|
|
|
|