| ■パークサイドの家 | 2011.08完成 |
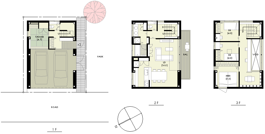
| 計画地 :横浜市鶴見区 | 敷地は駅前商店街と幹線道路に挟まれた商業地にあり、周辺は2〜3階建ての古くからの商店や住宅の他、幹線道路に沿って建つ高層マンションもすぐ近くに迫っている。防火地域でもある敷地を最大限に利用するため、鉄骨造(耐火構造)の3階建て住宅としている。幸いに敷地の南側には小規模な都市公園が隣接しているため、玄関までのアプローチを公園に沿って長く設けるとともに、公園のソメイヨシノを借景として室内各所から眺められる住宅としている。 |
| 用 途 :住宅 | |
| 主要構造:鉄骨造 | |
| 敷地面積:84.84m2 | |
| 延べ面積:161.67m2 | |
PLAN
![]() |
![]() |
![]() |
![]() |
![]() |
![]() |
![]() |
![]() |
![]() |
![]() |
![]() |
![]() |
![]() |
![]() |
![]() |
スナップ |