| ■3.5層の小さく高い家 | 2003.12 |
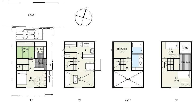
| 計画地 :神奈川県横須賀市 | 都市に典型的な四周を囲われた狭小な敷地における計画。駐車1台、4人家族+αのためのローコスト住宅である。斜線制限、容積率制限目一杯のボリュームを立ち上げ動線を最小化すべく中央に階段を配置する。各部屋にて不足する収納部は容積率不算入の中間階収納にて確保していて、そのため生まれたスキップフロア形式のため、天井の高さや部屋と部屋のつながりが複雑化して、採光、通風に大きく寄与できることとなった。 |
| 用 途 :住宅 | |
| 主要構造:木造在来工法 | |
| 敷地面積:59.90m2 | |
| 延べ面積:95.04m2 | |
PLAN
ELEVATION/SECTION
MODEL PHOTO
|
|
|
|