■スキップフロアハウス(大田) 2001.12

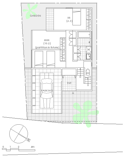
計画地 :東京都大田区 既存樹木の生い茂る前面道路より1.5mほど落ち込んだ敷地。道路レベルの玄関を中心に上下階にスキップフロアの構成。2階リビングは道路側の緑、1階寝室は敷地レベルの緑を囲むように配置されつつ、エントランス及びエントランス上部吹抜によりオープンにつながっている。
用 途 :住宅
主要構造:木造在来構法
敷地面積:127.10m2
延べ面積:143.25m2

1FPLAN

2FPLAN

PERSPECTIVE