| ■小田原の家 | 2014.06完成 |
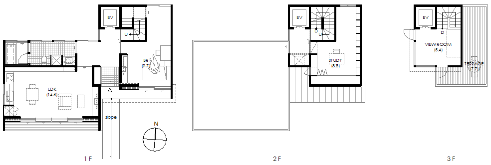
| 計画地 :神奈川県小田原市 | 高齢者が暮らすためのバリアフリーな居住空間と、かつて敷地周辺から望むことの出来た箱根山の眺望を再び得るための展望室とを併せ持つ家。敷地周辺は2階建ての家が建て込んでいるため、それらの家の頭越しの眺望を得るために建物は3階の展望室の床高さを最大限に高く設けた木造3階建ての家となった。1階と3階とはホームエレベーターでつなぎ、当初予定には無かった2階には他の階と違って薄暗く天井の高い書庫と仏間のある予備室を設けた。 |
| 用 途 :住宅 | |
| 主要構造:木造在来工法 | |
| 敷地面積:270.78m2 | |
| 延べ面積:108.02m2 | |
PLAN
![]() |
![]() |
![]() |
![]() |
![]() |
![]() |
![]() |
![]() |
![]() |
![]() |
![]() |
![]() |
![]() |
![]() |
![]() |
![]() |
![]() |
![]() |
![]() |
![]() |