| ■帯広の家(中札内ハウス・シュティレーベン) | 2004.11完成(Aタイプ) |
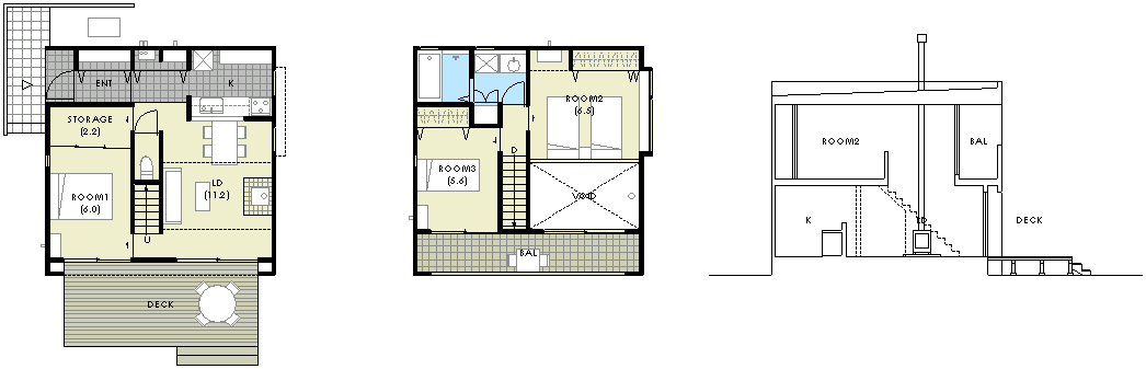
| 計画地 :北海道河西郡中札内村 | 森の中、週末住宅向けに開発された宅地内における分譲住宅のモデルプロジェクトである。都会からの交通の便もよい立地であり、手頃に入手可能な、定住も可能なコンパクトな週末住宅というコンセプトで計画されている。一般的な4人家族でも定住できるスペースを持った総2階建てのAタイプと、リタイアした夫婦向けのバリアフリーの平屋のBタイプを用意していて、どちらもアトリエや店舗、余暇の拠点など様々な住人が様々な住まい方を展開できる幅をもった住居としている。 |
| 用 途 :住宅(週末住宅)2棟 | |
| 主要構造:木造在来工法 | |
| 敷地面積:約600m2 | |
| 延べ面積:(A)82.80m2(B)89.43m2 | |
SITEPLAN
A-TYPE(1F,2F,SECTION)
B-TYPE(1F,2F,SECTION)
PERSPECTIVE
|
|
|
|
|
|
|
|
|
|
|
|
|
|
|
|