| ■仲町台の家 | 2004.01 |
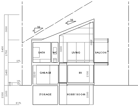
| 計画地 :神奈川県横浜市都筑区 | 新興住宅地における、良好な環境にあり整形なかたちのきれいな敷地。地下に趣味の部屋をもつ2階リビングの住宅である。 自動車を大小取り合わせて4台保有しているのでそのためのスペースを確保した上で、周辺に対するプライバシーに配慮した どちらかというと閉鎖的な住居を求められた。地下に光を落とすための仕掛けと、2階のメインの居住部のプライバシーを確保する 広いテラス、3層吹き抜けに螺旋階段のシルエットが浮かび上がるエントランス、防犯もかねる玄関の大きな木製格子戸など随所に 非日常的な空間を設けた楽しい住宅となっている。 |
| 用 途 :住宅 | |
| 主要構造:鉄筋コンクリート造+木造在来工法 | |
| 敷地面積:165.21m2 | |
| 延べ面積:185.14m2 | |
1FPLAN
B1F/2F/LOFTPLAN
SECTION
MODEL PHOTO
|
|
|
|