| ■SEA SCOPE | 2007.05 |
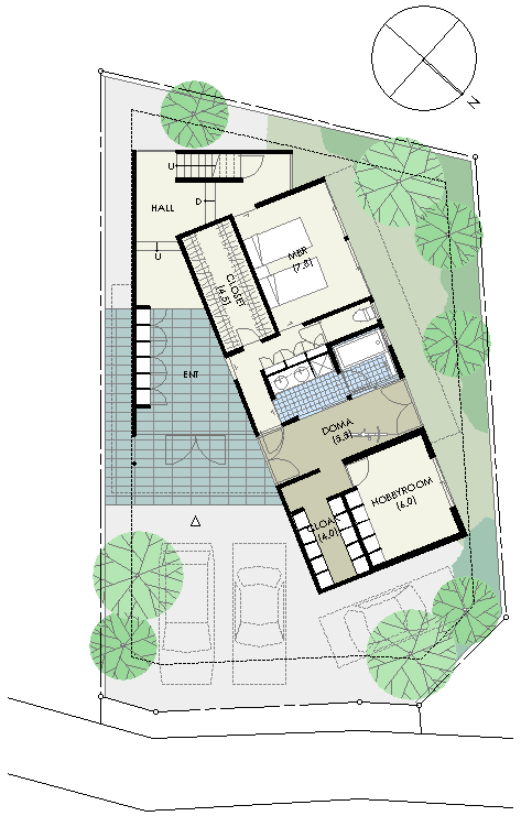
| 計画地 :神奈川県 | 山を背後に控えた住宅地の中にありながら、2階の高さからは海を間近に望むことのできる場所である。 2階の広いLDからの海景色が最もきれいに見えるようにと、建物はその方角へ正対するように配置している。 下階の1階にはプライベートな居住空間と、通り土間によって隔てられた離れの趣味スペースとを設けている。 外観的にアイストップとなっている塔状の上下動線の最上階には、2階の大空間とは対比的な月見台のある 親密なスケールの書斎兼ゲストルームを設けており、各所から見える眺望に変化を与えられるようにした。 |
| 用 途 :住宅 | |
| 主要構造:木造在来工法 | |
| 敷地面積:235.43m2 | |
| 延べ面積:193.83m2 | |
1FPLAN
(2F/3F/RF)PLAN
|
|
|
|
|
|