| ■宮前平の家 | 2005.12完成 |
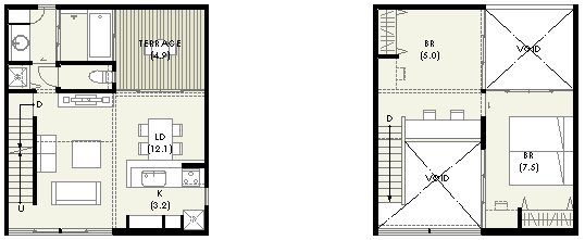
| 計画地 :川崎市宮前区 | 20坪程度の敷地面積ながらも正方形に近いきれいな敷地形状のおかげで、一般的な4人家族+ガレージの3階建て住宅の間取りが無理なくすんなりと納まった計画である。広めの道路に面する西面以外の3面は全て3階建ての住宅に囲まれることが予想される場所でもある。敷地をほぼ目一杯活かした箱型のボリュームを一旦立ち上げることで周辺の視線を隔絶した上で、日照を下階まで取り入れる光庭を南東部の上下に貫かせていて、建蔽率の制限もクリアしている。道路と光庭をつなぐアプローチをビルトインガレージとするとともに、光庭の2階にはスノコ状のデッキ(建蔽率除外)を設けて広いテラスとして利用している。2階のリビングと3階の子供部屋ゾーンとはまた別に室内の大きな吹き抜けによって一体的な空間とするとともに、リビングへの採光に有効なものとしている。 |
| 用 途 :住宅 | |
| 主要構造:木造在来工法 | |
| 敷地面積:67.50m2 | |
| 延べ面積:108.48m2 | |
1FPLAN
2F/3FPLAN
|
|
|
|
|
|
|
|
|
|
|
|
|
|
|
|