| ■切妻のコートハウス | 2006.01完成 |
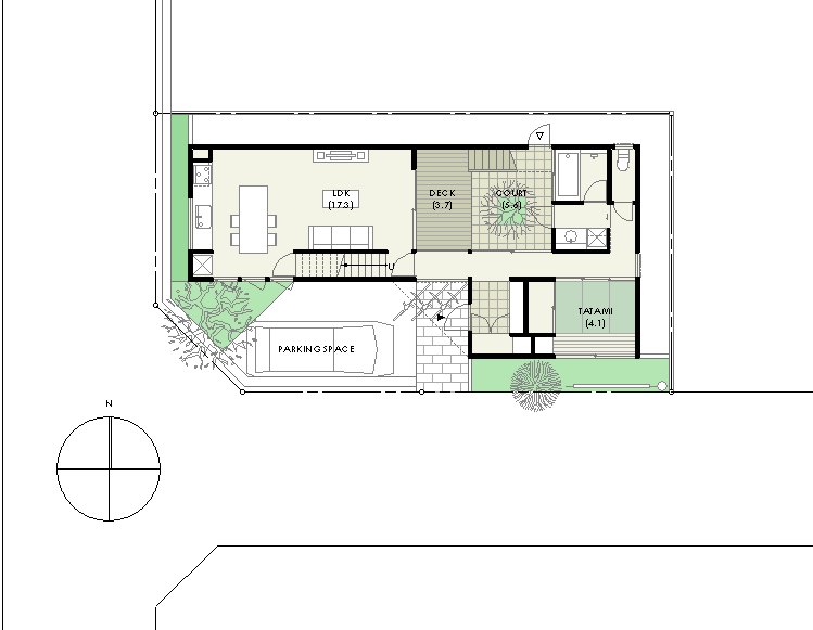
| 計画地 :東京都町田市 | 非常に環境のよい住宅地内の角地における計画。その南面する間口の長さを目一杯活かすように建物は東西に長い建物としていて日照を効率的に室内に取り込んでいる。プライベートな生活を確保するために建物の中央には広い中庭を挟みこんでいて、どこにいても外部の庭やら空を感じとることができ、建物の端から端までの長い距離感が目で見えるような開放的な間取りとしている。 |
| 用 途 :住宅 | |
| 主要構造:木造在来工法 | |
| 敷地面積:148.98m2 | |
| 延べ面積:112.82m2 | |
1FPLAN
2FPLAN
| |
|
|
|
|
|
|
|
|
|
|
|
|