| ■小菅ヶ谷の家 | 2015.02完成 |
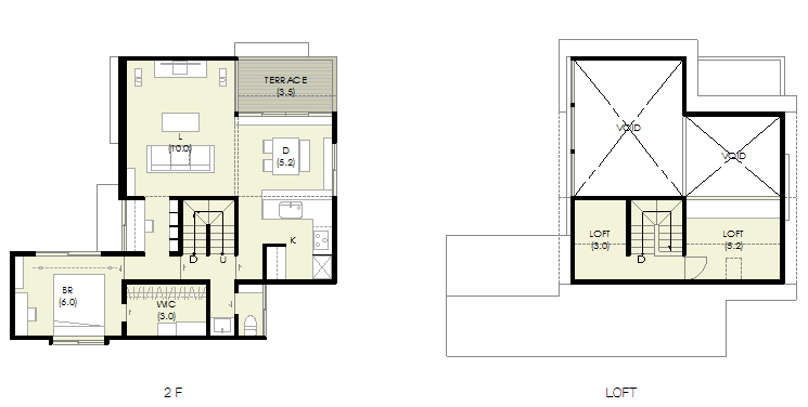
| 計画地 :横浜市栄区 | 建て主の奥様の御実家を建替えてLDKのみ分離型とした2世帯住宅とする計画。敷地は東西を高低差のある2つの道路に挟まれていて、南側隣地の地盤は計画敷地よりも高く、家が迫っていて南からの日照の妨げとなっている。1階は母の暮す空間と共用の客間と水廻りを設け、2階とロフトは子世帯専用の空間とした。1、2階ともに見晴らしと日当たりの良い西側を主な採光面としている。外観は切妻屋根を重ねた屋根と杉下見板張の外壁。 |
| 用 途 :2世帯住宅 | |
| 主要構造:木造在来工法 | |
| 敷地面積:179.97m2 | |
| 延べ面積:130.00m2 | |
![]() |
![]() |
![]() |
![]() |
![]() |
![]() |
![]() |
![]() |
![]() |
![]() |
![]() |
![]() |
![]() |
![]() |
![]() |
![]() |
![]() |
![]() |
![]() |
スナップ |