| ■金沢の家 | 2003.07 |
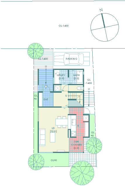
| 計画地 :石川県金沢市 | 雪の多い地方における建売住宅の計画。サンルームがあると大変喜ばれる場所柄とのこと。北側の道路面より敷地地盤は1.4mほど高く、南側にはさらに高く「裏山」が近接していてあまり多くの日照は望めなさそうである。100平米そこそこの敷地に3LDKという一般的な要件であり、建物の計画自体も非常に単純明解なものとしているが、陽だまりとなる場所を設け、外観をシンプルかつ抽象的なものとして差別化を図っている。 |
| 用 途 :建売住宅 | |
| 主要構造:木造在来工法 | |
| 敷地面積:105.10m2 | |
| 延べ面積:104.75m2 | |
1FPLAN
2FPLAN
PERSPECTIVE
|
|
|
|
|
|
|
|
|
|