| ■上末吉の家V | 2006.04完成 |
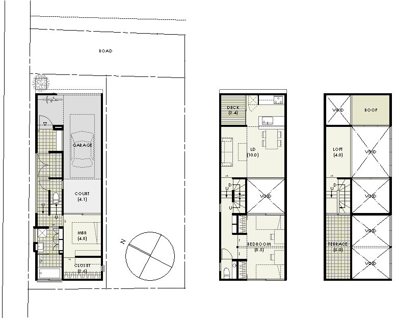
| 計画地 :神奈川県横浜市鶴見区 | 敷地の東側にて接道していて北側も狭い路地(旧水路)に面しているものの、東には中層のビル、南には本計画と同様の2.5層の住宅が建ち並んでいて日照があまり望めない敷地である。建物は敷地一杯に2階建て+ロフトのボリュームを囲い取った中に4畳半弱の広さのプライベートな中庭(光庭)を設けている。2階リビングとして天井を高くするとともに、中庭に面する大窓、南側の高窓を設けることで居間や子供部屋への採光を十分確保している。また中庭とは別にキッチンに面するサービステラスやロフトと同じレベルに一部屋上テラスを設けることで、密集地の中でのプライバシーを確保しつつ、外部空間を室内に積極的に取り入れるようにしている。 |
| 用 途 :建売住宅 | |
| 主要構造:木造在来工法 | |
| 敷地面積:79.70m2 | |
| 延べ面積:97.81m2 | |
PLAN(1F/2F/LOFT)
|
|
|
|
|
|
|
|
|
|
|
|
|
|