| ■桜山の家 | 2010.01完成 |
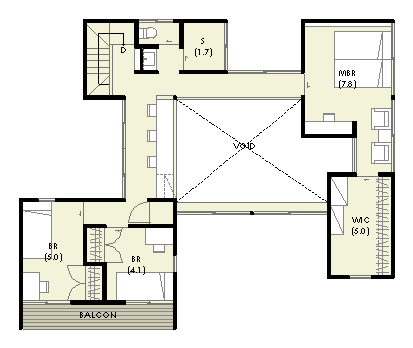
| 計画地 :神奈川県三浦郡葉山町 | 春には山桜の咲き乱れる里山に隣接した敷地。 山に近接しているため日照時間が限定されてしまうが、 大開口を持つ2層吹抜の居間を家の中心に配置することで採光と 山への眺望を取り入れている。各個室はその広い居間を取り囲むように分散して 配置することで家族間の距離を適度に保ちつつ、各方向への空間の広がりや 眺望、採光や通風に十分配慮している。 |
| 用 途 :住宅 | |
| 主要構造:木造在来工法 | |
| 敷地面積:246.61m2 | |
| 延べ面積:162.28m2 | |
1FPLAN
2FPLAN
![]() |
![]() |
![]() |
![]() |
![]() |
![]() |
![]() |
![]() |
![]() |
![]() |
![]() |
![]() |
![]() |
![]() |
![]() |