| ■横浜青葉の家 | 2001.12 |
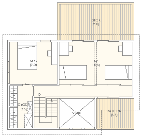
| 計画地 :横浜市青葉区 | 北向きひな壇の造成地。擁壁により道路より4m近く敷地地盤が高く、したがって道路面の北と西に向かって眺望が良く、南側は逆に隣地地盤が2mほどさらに高くなっている。北向きの眺望の確保、南からの日照の確保、パブリック、プライベート2種の異なる外部デッキスペース、約1800万円のローコストを要件に設計を行っている。極力シンプルな総2階建てのボリュームにデッキスペースを付加すること及びもう1種のデッキスペースを切り取ること、内部吹抜による日照の獲得と家族の気配を感じられるようにすること。標準的な敷地規模及び家族構成のためにローコスト住宅のひとつのプロトタイプとして考えることもできる。 |
| 用 途 :住宅 | |
| 主要構造:木造在来構法 | |
| 敷地面積:131.43m2 | |
| 延べ面積:103.50m2 | |
1FPLAN

2FPLAN

PERSPECTIVE
|
|
|
|
|
|
|
|
|
|
|
|