| ■ambra | 2014.5完成 |
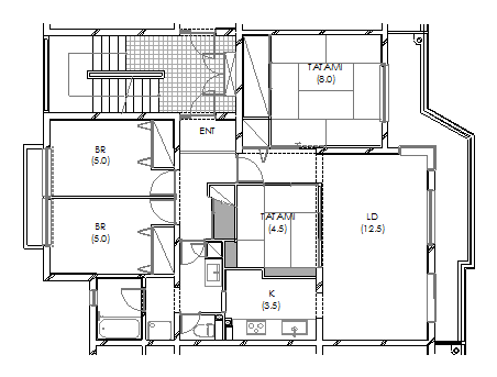
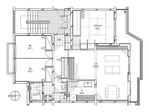
| 計画地 :神奈川県横浜市都筑区 | 緑の多く環境の良い大規模な公団分譲団地の専用住戸のリフォーム。管理組合による専用部分内の給排水管の交換工事が近年中に予定されていたため、その修繕工事も想定して設計を行うこととなった。住戸は和室2室を含む4LDKの間取りであったが、その内LDと続き間であった和室は間仕切りを取り払ってLDを大幅に広くしKは対面式のキッチンとした。北側の洋間や水廻りは大きく変更せず内装と設備機器の交換程度にとどめているが、LDやKはアンティーク調のフローリングや古材風の板材、レトロ調のタイルを使うなどして新築マンションとは違う個性的なインテリアとなるようにした。 |
| 用 途 :共同住宅(専用住戸部分のリフォーム) | |
| 主要構造:鉄筋コンクリート造 | |
| 延べ面積:98.41m2 | |
PLAN
BEFORE PLAN
![]() |
![]() |
![]() |
![]() |
![]() |
![]() |
![]() |
![]() |
![]() |
![]() |
![]() |
![]() |