| ■20・08 | 2012.04完成 |
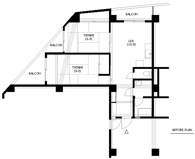
| 計画地 :横浜市磯子区 | 独身男性1名が暮らす築40年近い集合住宅の1室の全面リフォーム。 角地に建つ建物の4階コーナー部の不整形な外形の住戸であり、 窓は西と北面に向いているため日照条件はあまり良くない。既存の間取りは 和室2室にオープンなLDKが面する昔ながらの2LDKであったが、主に夜間〜 朝までしか使用しない一人住まいであることを考えてその時間帯を快適に過ごせる ように普段のライフスタイルをそのまま反映した新しい間取りとした。 従前の3室を仕切っていた壁は撤去され、新しく設けられた独立壁によって リビングルーム、ワークルーム、ベッドルームとに最適な面積配分でゆるく仕切り、かつて LDと一体化していたキッチン、水廻りは逆にLDとは距離をおいた空間として再構成し、 生活感をコントロールしやすくしている。 使用できる面積は当然限られているため、キッチンやトイレなども用途を限定せず 室内の各所で様々な用途がクロスオーバーした、住人の生活作法をそのまま空間化した 無駄のない空間としている。 |
| 用 途 :共同住宅(リフォーム) | |
| 主要構造:鉄筋コンクリート造 | |
| 延べ面積:約57m2 | |
![]() |
![]() |
![]() |
![]() |
![]() |
![]() |
![]() |
![]() |
![]() |
![]() |
![]() |
![]() |
![]() |
![]() |
![]() |